Description
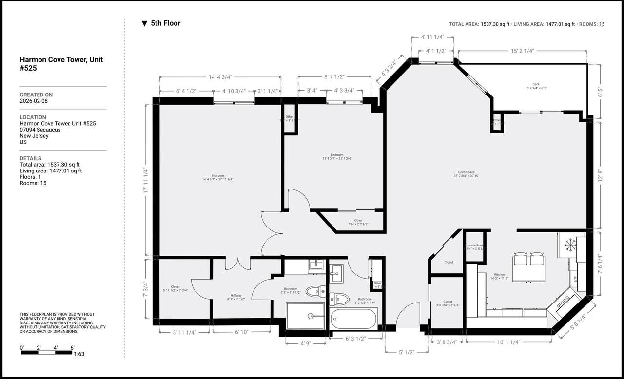
Discover the epitome of sophisticated living at Harmon Cove Towers with this spacious two-bedroom, two-bath condo. Nestled in one of Secaucus' most coveted condominium communities, this residence offers a seamless blend of suburban serenity and urban accessibility, located just minutes from New York City transit, major highways, shopping, dining, and entertainment. Designed for both comfort and functionality, the condo boasts a smart layout ideal for everyday living and entertaining. The bright, open-concept living area is awash with natural light, featuring an updated kitchen complete with a work island, ample cabinetry, and generous counter space. The spacious dining room opens to a balcony, offering partial views of the NYC skyline-perfect for al fresco dining or unwinding with a book. The primary bedroom is a haven of relaxation, featuring an en-suite bath and a walk-in closet. Marble tiled floors extend throughout the living spaces, adding an elegant touch to the home's refined ambiance. Living at Harmon Cove Towers means enjoying a host of desirable amenities. Residents benefit from 24-hour doorman and concierge services, on-site management, a fitness center, and recreational facilities. The outdoor pool and landscaped grounds provide a tranquil escape, while tennis and basketball courts, social and game rooms, playground areas, and community spaces offer ample opportunities for leisure and socializing. Additionally, convenient bus service to NYC is available directly beneath the building, and assigned parking ensures ease of access. Monthly maintenance covers common areas and amenities, underscoring the community's commitment to a hassle-free lifestyle. Harmon Cove Towers is more than just a residence; it's a lifestyle choice for those seeking convenience, community, and sophistication. With its rich history and dynamic neighborhood setting, this condo is designed for discerning individuals looking for a refined place to call home.
-
2BEDS
-
N/AACRES
-
2BATHS
-
01/2 BATHS
-
1,379SQFT
-
$290$/SQFT
School Ratings & Info
Description
Discover the epitome of sophisticated living at Harmon Cove Towers with this spacious two-bedroom, two-bath condo. Nestled in one of Secaucus' most coveted condominium communities, this residence offers a seamless blend of suburban serenity and urban accessibility, located just minutes from New York City transit, major highways, shopping, dining, and entertainment. Designed for both comfort and functionality, the condo boasts a smart layout ideal for everyday living and entertaining. The bright, open-concept living area is awash with natural light, featuring an updated kitchen complete with a work island, ample cabinetry, and generous counter space. The spacious dining room opens to a balcony, offering partial views of the NYC skyline-perfect for al fresco dining or unwinding with a book. The primary bedroom is a haven of relaxation, featuring an en-suite bath and a walk-in closet. Marble tiled floors extend throughout the living spaces, adding an elegant touch to the home's refined ambiance. Living at Harmon Cove Towers means enjoying a host of desirable amenities. Residents benefit from 24-hour doorman and concierge services, on-site management, a fitness center, and recreational facilities. The outdoor pool and landscaped grounds provide a tranquil escape, while tennis and basketball courts, social and game rooms, playground areas, and community spaces offer ample opportunities for leisure and socializing. Additionally, convenient bus service to NYC is available directly beneath the building, and assigned parking ensures ease of access. Monthly maintenance covers common areas and amenities, underscoring the community's commitment to a hassle-free lifestyle. Harmon Cove Towers is more than just a residence; it's a lifestyle choice for those seeking convenience, community, and sophistication. With its rich history and dynamic neighborhood setting, this condo is designed for discerning individuals looking for a refined place to call home.
© 2026 Hudson County Multiple Listing Service. All rights reserved. IDX information is provided exclusively for consumers' personal, non-commercial use and may not be used for any purpose other than to identify prospective properties consumers may be interested in purchasing. Information is deemed reliable but is not guaranteed accurate by the MLS or PRIME Real Estate Group.
The data relating to real estate for sale or lease on this web site comes in part from HCMLS. Real estate listings held by brokerage firms other than PRIME Real Estate Group are marked with the HCMLS logo or an abbreviated logo and detailed information about them includes the name of the listing broker.
Data last updated: 2026-03-09T19:25:45.457.