Description
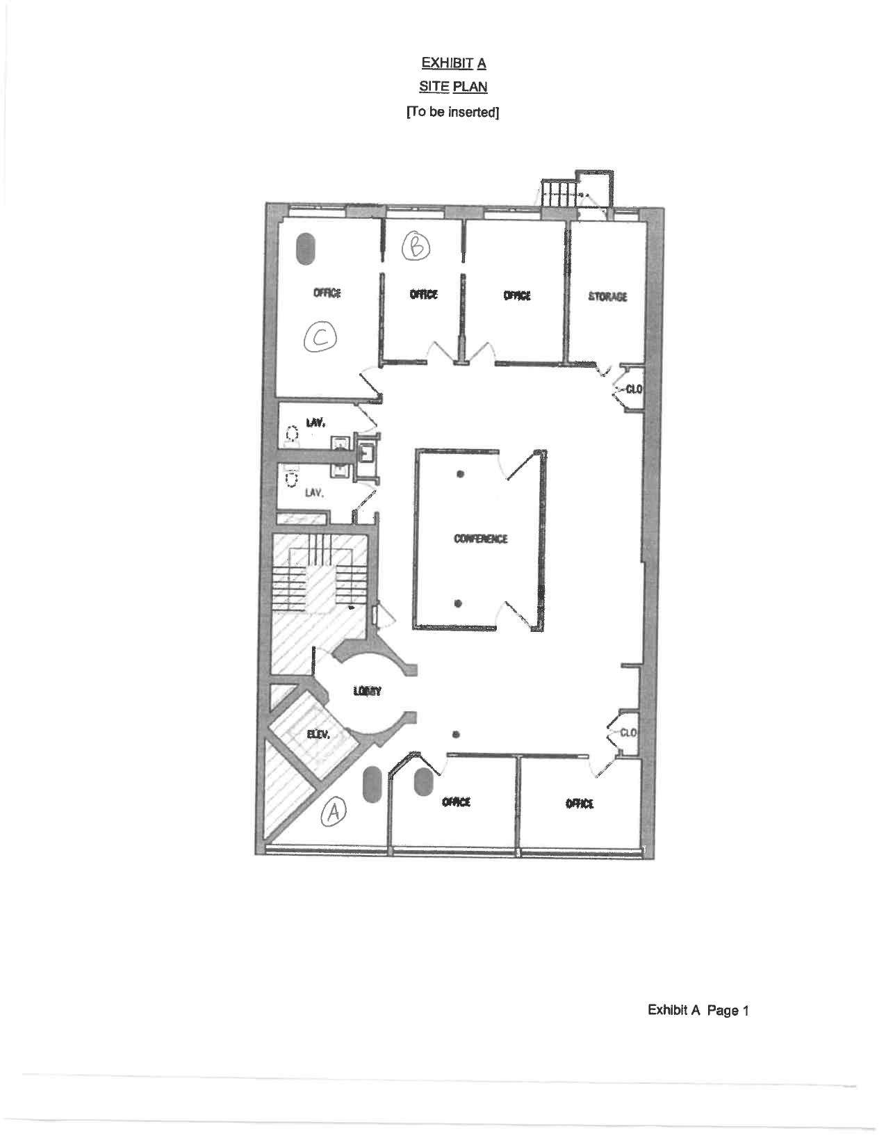
Class A Office space available on 10th and Washington! Great location!! 3 spaces available, all different sizes, (See pictured floor plan). Space A is $500 per month Space B is $1100 per month Space C is $1400 per month Heat and Hot water included. Access to large centrally located conference room. His/her bathrooms and kitchen area with microwave. Working high-tops and cubicles perfect for a real estate team or brokerage. Additional charge for use of entire office.
-
0BEDS
-
N/AACRES
-
0BATHS
-
01/2 BATHS
-
120SQFT
-
$4$/SQFT
School Ratings & Info
Description
Class A Office space available on 10th and Washington! Great location!! 3 spaces available, all different sizes, (See pictured floor plan). Space A is $500 per month Space B is $1100 per month Space C is $1400 per month Heat and Hot water included. Access to large centrally located conference room. His/her bathrooms and kitchen area with microwave. Working high-tops and cubicles perfect for a real estate team or brokerage. Additional charge for use of entire office.
Related Properties
© 2026 Hudson County Multiple Listing Service. All rights reserved. IDX information is provided exclusively for consumers' personal, non-commercial use and may not be used for any purpose other than to identify prospective properties consumers may be interested in purchasing. Information is deemed reliable but is not guaranteed accurate by the MLS or PRIME Real Estate Group.
The data relating to real estate for sale or lease on this web site comes in part from HCMLS. Real estate listings held by brokerage firms other than PRIME Real Estate Group are marked with the HCMLS logo or an abbreviated logo and detailed information about them includes the name of the listing broker.
Data last updated: 2026-02-18T11:25:44.79.